Copyright © 2009-2018 Smile You All right reserved.
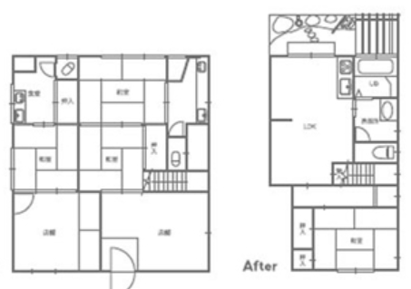
内装リフォーム ドアノブ交換 アンテナ撤去 照明器具交換 床補強 玄関収納と吊戸棚 クッションフロー貼り タイル貼り替え豊島区上池袋K様
![]()
ドアノブ 施工前
ドアノブの交換をします。
ドアノブ交換
取り外し、事前に打ち合わせして決めた新しいドアノブを取り付けます。
ドアノブ 交換後
交換完了です。
アンテナ撤去
屋上にある使ってないアンテナを撤去しました。
玄関照明 施工前
交換前の玄関照明です
玄関照明交換
既存を外し、シーリングライトを取り付けるために調整します。
玄関照明 施工後
ライト取り付け完了です。
玄関タイル 施工前
玄関タイルが欠けてしまっています。
玄関タイル張り替え
新規タイルに張り替えしました。
クッションフロア撤去
既存のクッションフロアを剥がします。
キッチン床貼り
清掃後、新規密着の為にのり付けを行います。その後、新たなクッションフロアを貼り施工完了です。
床補強工事
一部床は撤去し、下地補強を行いました。
玄関 既存収納解体
玄関のシューズボックスを解体しました。
玄関 収納取付用下地
解体した場所に新規シューズボックスを設置するための床を作ります。
玄関 収納設置
壁と床を作った後、新規収納を設置しました。
玄関 吊り戸取付け
上には新たに吊戸棚を取り付けました。
巾木取付け・塗装
工事に伴い新たに取り付けた巾木やドア枠を塗装しました。
施工完了
すべての工事と清掃が終わったら、お客様立ち合いのもと点検して施工完了です。各工事項目に応じた保証期間を記した保証書をお渡しします。
スマイルユウへお気軽にご来店ください。
リフォーム増改築、屋上防水、外壁塗装について、お気軽にご来店ご相談下さい。































